4 Pandan Crescent
45,998 - 92,499 sqft
Please contact us for price
SG
+65 6220 3888
Make an enquiry
Office Space
Flex Space
Research
About JLL
Industrial Space
Favourites
SG
+65 6220 3888
Make an enquiry
Industrial
ID
SGP-P-001DGT
industrial
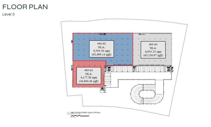
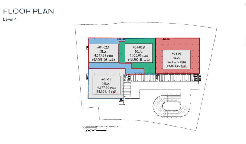
2 Floor plans
4 Pandan Crescent
4 Pandan Crescent
Singapore, 128475
$1.85 per sqft
Size
45,998 - 92,499 sqft
Enquire
Call now
Share
Description
Building Information
Location
Floor plans
Enquire
Description
A 6-storey integrated E-Commerce Hub consists of modern ramp-up warehouse with approved dangerous storage on Level 1 and trailer parking lots on the rooftop.
Available Units
Location
Floor plans
Industrial
SINGAPORE
SINGAPORE
WEST ZONE
128475
4 Pandan Crescent