Industrial
ID SGP-P-001AV7industrial
16 Tai Seng Street
16 Tai Seng Street
Singapore, 534138
$4.80 - $5.20 per sqft
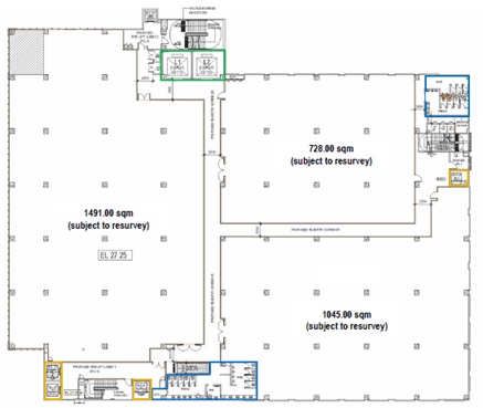
- Size3,982 - 41,430 sqft
- Description
- Building Information
- Location
- Floor plan
- Enquire
Description
Newly upgraded 8-storey High-Specs B2 Corporate looking Industrial Building with sheltered parking lots. Strategically located within Paya Lebar iPark, with excellent visibility from Upper Paya Lebar Road, central location, easily accessible to KPE and to Tai Seng MRT. Newly renovated façade and lobby, Corporate façade frontage. Spaces suitable for IT, research, software & product development uses.


